Description
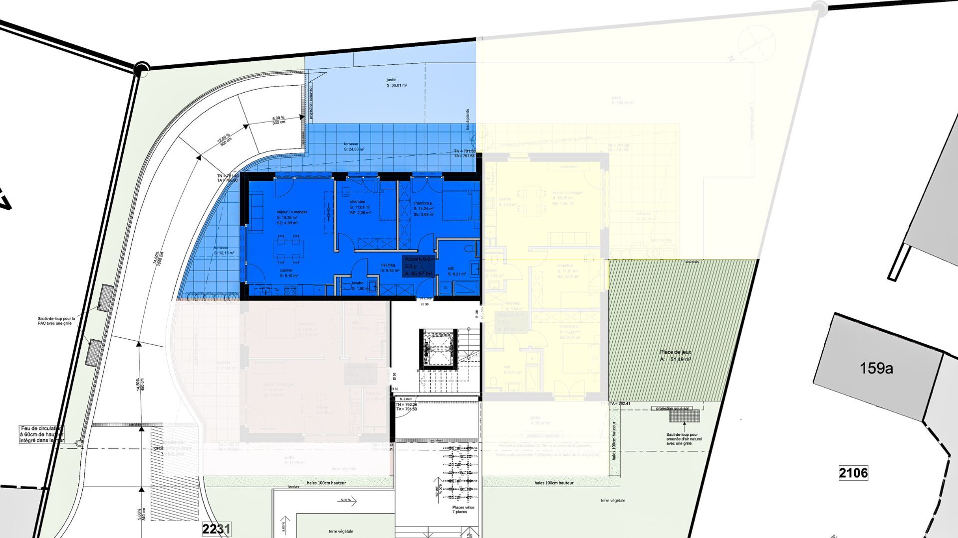
Beau 3,5 pièces d’une surface habitable de 85,7 au rez-de-chaussée dans une petite PPE de 8 logements.
Beau dégagement sur la campagne. Idéal pour couple, famille ou pour investisseurs.
À 14 min de l’autoroute.
Confort
Bel emplacement
Vue dégagée
Quartier calme
Rez-de-chaussée
Ascenseur
État : neuf
Chauffage : au sol avec pompe à chaleur
Terrasse : 2
Jardin privatif de 36m2
Année de construction : 2025
Cave
Place de parc intérieure : 1
Disponibilité : mars 2026
Accès
À 7 min de Romont
À 20 min de Bulle
À 35 min de Fribourg
À 35 min de Lausanne-Sallaz
Rez-de-chaussée
Hall d’entrée avec armoire, bel espace à vivre comprenant une cuisine équipée ouverte, salle à manger et salon avec accès à une belle terrasse, WC visiteurs, deux chambres avec accès à la terrasse, salle de bains avec douche à l’italienne et WC.
Sous-sol
Ascenseur, parking souterrain, cave, local à vélos
Remarques
Vous recherchez un lieu de vie en campagne proche de toutes les commodités ?
Venez visiter ce sympathique appartement nous vous le ferons découvrir avec plaisir !
Commodités
Extérieur
- Terrasse(s)
- Jardin
- Place(s) de parc couverte(s)
Intérieur
- Ascenseur
Vue
- Dégagée









