Description
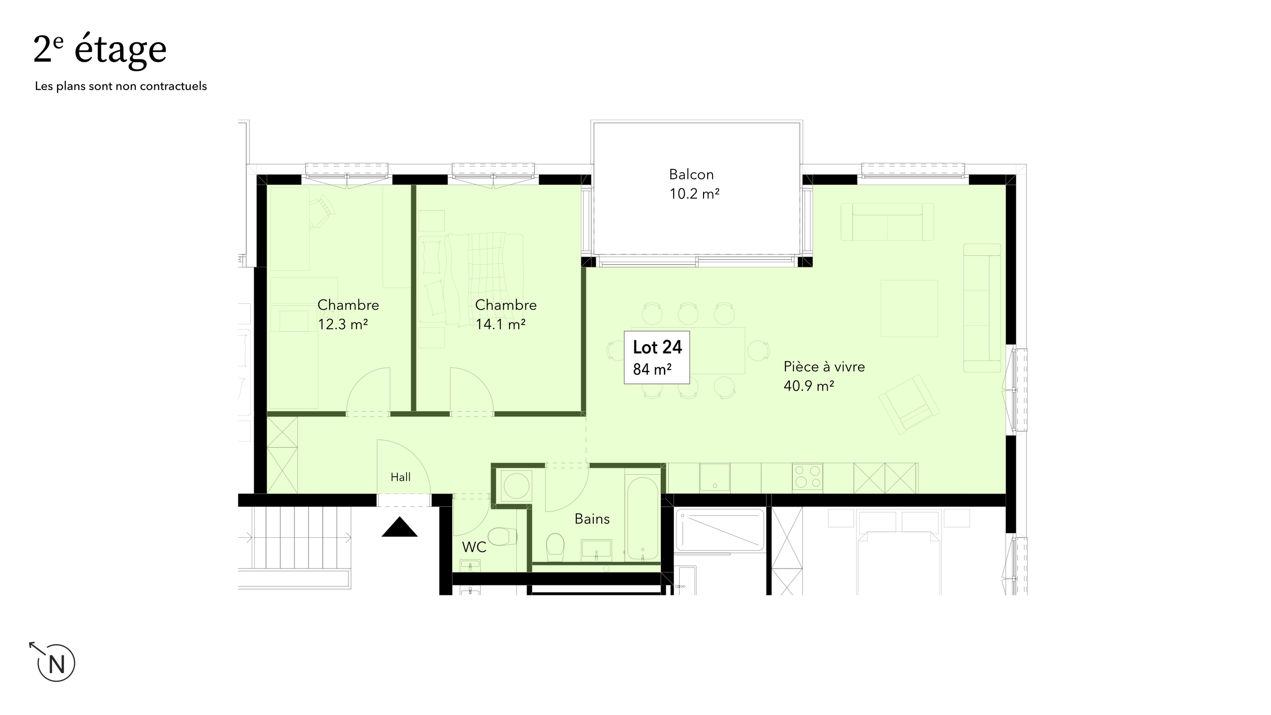
Ce beau 3,5 pièces de 84 m2 situé au 2e étage vous attend !
Lumineux, confortable et parfaitement situé, il est idéal pour un couple ou une petite famille en quête de bien-être.
À 15 min de l'autoroute et à 2 min à pieds du bus.
Confort
(Lot 24)
Calme et verdoyant
un joli balcon
Grandes baies vitrées
Chauffage pompe à chaleur - sol
Technologie GÉOCOOLING pour rafraichir naturellement l'habitat en été
Sol, cuisine et sanitaire(s) : choix au gré du preneur
Parking public à proximité
Une place de parc intérieure en sus à CHF 30'000.- l'unité est attribuée au lot.
Disponibilité : Été 2027.
Accès
À 5 min de Romont et de l'usine Nespresso
À 15 min de l'autoroute
À 22 min de Bulle
À 30 min de Vevey et du lac
Transports publics
À 2 min à pieds du bus
Rez inférieur
Parking, caves, places vélo et locaux techniques.
2ème niveau
Un hall d'entrée, un WC visiteurs, une grande pièce à vivre de 40,9 m2 avec cuisine ouverte et un accès au balcon. Une salle de bains et 2 jolies chambres.
Aménagements extérieurs
Joli balcon de 7,4 m2.
Commun : places visiteurs et parking à vélo.
Situation
En pleine campagne, Siviriez est un cocon de tranquillité entouré par les champs à quelques minutes des grands axes routiers.
Particularités
- Le GÉOCOOLING (ou refroidissement géothermique) est une technique écologique de régulation thermique qui utilise la température constante du sol pour rafraîchir un bâtiment.
Comment ça fonctionne ?- L'air ou l'eau passe dans des conduits souterrains où la température est plus basse qu'en surface pendant l'été.
- Cette fraîcheur est ensuite diffusée dans le bâtiment, réduisant la dépendance aux systèmes de climatisation traditionnels.
Avantages du géocooling :
- Écologique : réduit les émissions de CO₂ en limitant l'usage d'énergies fossiles.
- Économique : diminue les coûts liés à la climatisation.
- Confortable : offre un rafraîchissement naturel et constant.
Remarques
Profitez d'un financement avantageux avec la banque BCF et d'une hypothèque ultra-attractive, une occasion idéale pour devenir propriétaire dans des conditions exceptionnelles !
Que ce soit pour un investissement rentable ou pour votre résidence principale, ce bien vous offre un cadre de vie paisible, un confort moderne et une opportunité financière unique.
Ne laissez pas passer cette chance ! Contactez-nous dès maintenant pour en savoir plus.
Ce projet propose 5 studios et 20 appartements, à découvrir sur la page du projet de Siviriez !
Commodités
Environnement
- Village
- Commerces
- Arrêt de bus
- Centre sportif
Extérieur
- Balcon(s)
- Parking public
Intérieur
- Ascenseur
- Parking souterrain
- Cuisine ouverte
- WC visiteurs
- Cave
- Local à vélos
- Triple vitrage
Sol
- A choix
Ensoleillement
- Bon
Vue
- Dégagée












